The Side Loader Truck Trailer is in stock at the factory, produced in October 2020, we can repaint the color for you according to your needs. As the end of the year approaches, TITAN will give the lowest discount, and both new and old customers will give 600USD off and Get Free Accessories.
TITAN side lifter are becoming more and more popular. Side lift crane trailers are designed to increase various productivity.
You will be able to reduce transportation costs, increase profits and have a competitive advantage.TITAN Sidelifter Trailer includes 20ft self loader truck, 20ft and 40ft side lift crane. Shipping tonnage is 16tons self unloading container trailer, 21 tons self loading trailer for sale, 25tons self loading container truck, 37 tons self loading container trailer for sale, 40 tons container trailer with crane, 45 tons side loader for sale for your choice.
Container Side Loader Trailer for Sale

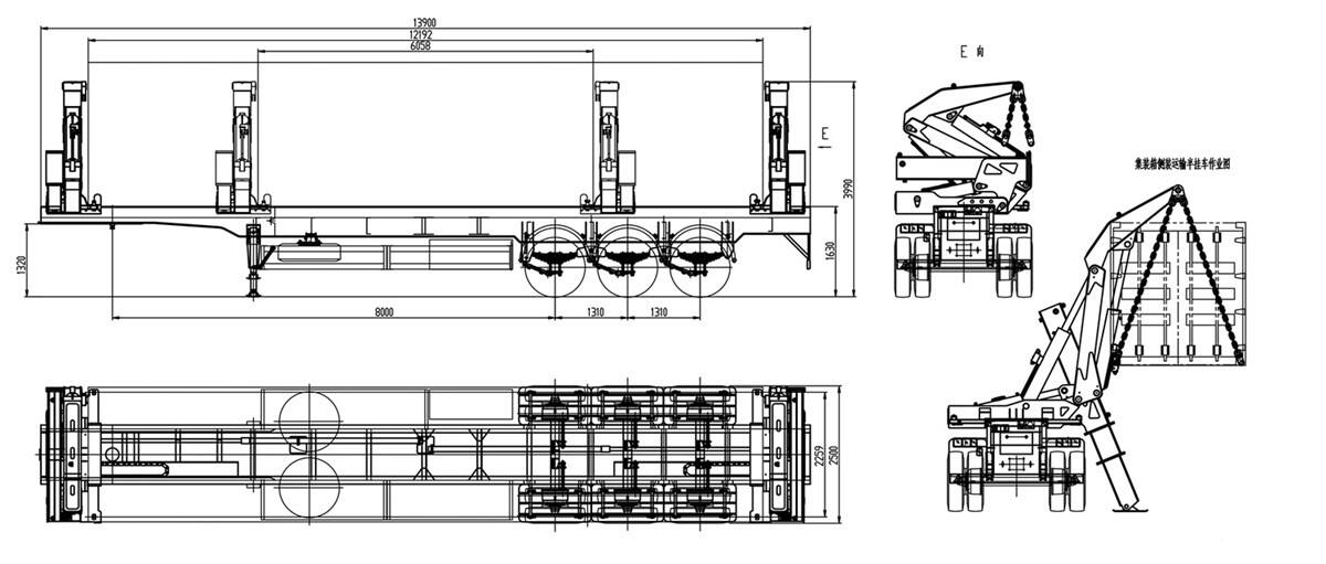
Drawing of 40Ft Side Loader Truck Trailer Price
This large-scale expansion is also an important function when performing trailer-to-trailer transfers. The trailer-to-trailer transfer refers to the use of a container side loader to load or unload containers onto another trailer.
During this process, the accompanying trailer is parked as close as possible to the forklift, and then the container is transferred. The larger outreach allows additional distance between the supporting side lifter for sale and the container side lifter, making alignment easier and avoiding collision damage.
The container loading is stored in a low-key manner, which can avoid damage from foreign obstacles during transportation, and also avoid damage and contact with the container when being loaded by straddle carriers.
![]()

Testing of Side Lifter Trailer Manufacturer
With a 37ton lifting capacity, the self loading container truck for sale is quick and stable and boasts an outreach of more than four meters to provide ease of operation.
The side lift container transport is available with a separate power pack system with the Kubota engine. This means that the self load containers can operate with any truck without any specific hydraulic fittings, and gives more flexibility for operators with a fleet of trucks.

Details of 45T Container Side Loader Trailer